この物件の学区情報
勝原小学校 勝原小学校区内の物件を探す
山城中学校 山城中学校区内の物件を探す
物件画像
【中古一戸建て】平塚市出縄 2,780万円の物件概要
| 物件名 | 平塚市出縄 築浅住宅 | ||
|---|---|---|---|
| 所在 | 平塚市出縄 | ||
| 交通 | 東海道本線「平塚駅」バス19分 勝原小学校前 停歩5分 | ||
| 物件番号 | 211713687001 | 物件種別 | 中古一戸建て |
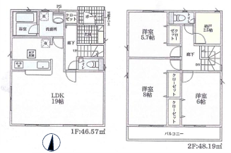
| 土地面積 | 124.29m2 | 建物面積 | 94.76m2 |
| 間取り | 3SLDK | 建物構造 | 木造2階建て |
| 築年月 | 2024年4月 | 用途地域 | 第一種低層住居専用地域 |
| 現況 | 居住中 | 引渡時期 | 相談 |
| 小学校区 | 平塚市立勝原小学校 | 中学校区 | 平塚市立山城中学校 |
| 土地権利 | 所有権 | 取引態様 | 媒介 |
| 設備 | LPGガス 、公営水道 、排水(下水) | ||
| 備考 | |||
| こだわり項目 | |||
| 周辺アクセス | |||











